AMJ IMMO Agence
Télécharger la fiche

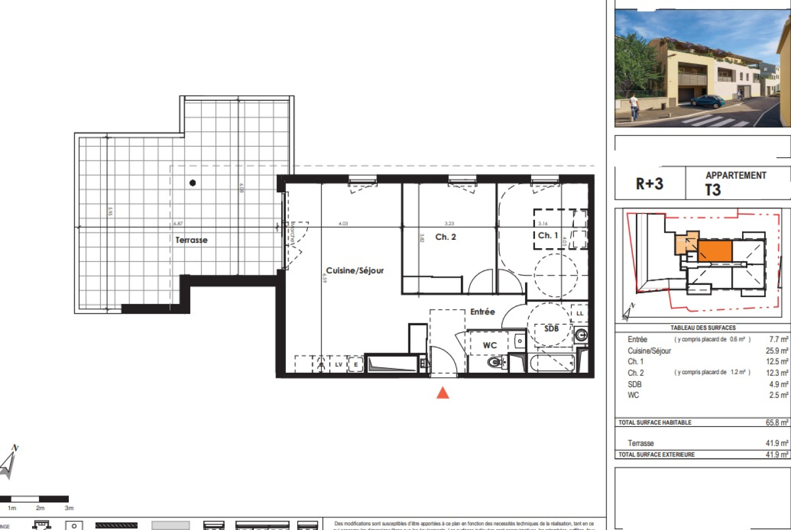
Appartement 3 pièce(s) 2 chambre(s) 65 m²

Nîmes (30000)
246 000 € Référence 4150

A propos de ce bien

NIMES- QUARTIER SAINT CESAIRE A 15 miniutes des arenes, dans une résidence securisee Appartement de type T3 de 65 m2 situé au 3eme et dernier étage comprenant un séjour avec une cuisine de 22 m² donnant sur une belle terrasse de 41m2, deux chambres ,une salle de bains et un wc. Ainsi qu’un emplacement de parking privatif en sous-sol. A visiter sans plus tarder. A proximité de l'IUT et du CHU de nimes

Pour tous renseignements complementaires ou visite veuillez contacter: Jessica ANDRIEUX 07.81.72.37.94.- Agence AMJ IMMO

Caractéristiques de ce bien

  • Surface 65 m²
  • carrez 65 m²
  • séjour 25 m²
  • 2 chambre(s)
  • 1 salle(s) de bain
  • construit en 2025
  • cuisine américaine
  • exposition Nord-Ouest
  • 3ème étage
  • 3 étage(s)
  • balcon
  • terrasse

Diagnostics énergétiques

Consommation énergétique
A B C D E F G
Emission de gaz à effet de serre
A B C D E F G
DPE en cours

Informations financières

Prix de vente honoraires TTC inclus 246 000 €

Calcul des mensualités

* Champs obligatoires