AMJ IMMO Agence
Télécharger la fiche

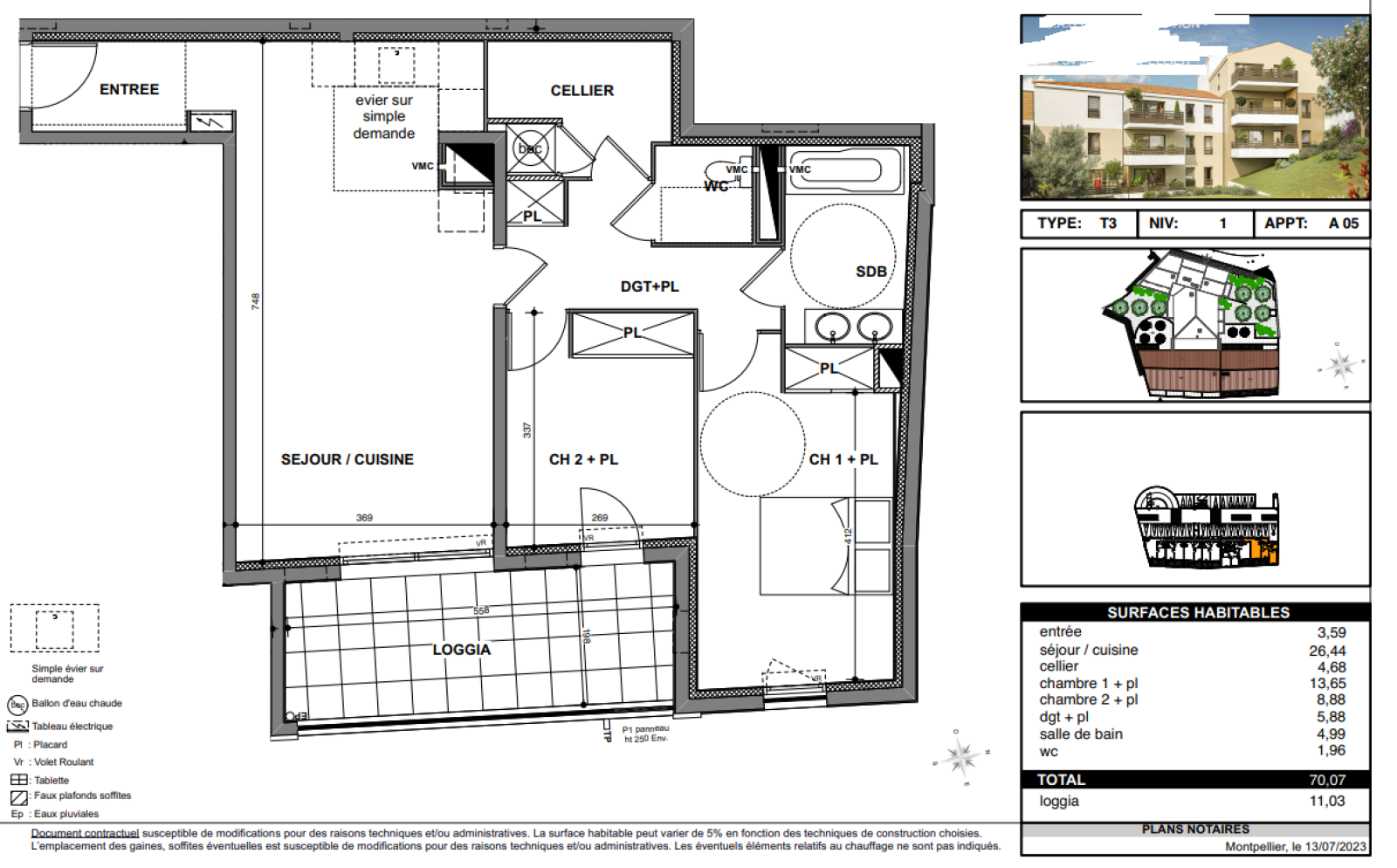
Appartement 3 pièce(s) 2 chambre(s) 70 m²

Nîmes (30000)
208 802 € Référence 1265

A propos de ce bien

NÎMES Quartier Mont Duplan Situé à 8 minutes à pied de l’Écusson, cet appartement se trouve au sein d’une résidence contemporaine et sécurisée de 49 logements, conforme aux normes RT 2012.L’appartement de 3 pièces d’une superficie de 70m² m² situé au 1er étage , Il se compose d’un séjour avec cuisine de 26m² donnant accès à une belle terrasse de 11.03 m² exposée EST , de deux chambres de 13m² et 8.88m², une salle de bains et un wc. Ainsi qu'un emplacement de parking privatif en sous-sol.

Les frais de notaire sont réduits, Le logement bénéficie d’une TVA à 5,5 %,sous conditions de ressources et d’occupation en résidence principale. Eligible Prêt à Taux Zéro (PTZ+ 2020)

Le bien est soumis au statut juridique de la copropriété. Nombre de lots : 49.

Les informations sur les risques auxquels ce bien est exposé sont disponibles sur : www.georisques.gouv.fr..

Pour tous renseignements complémentaires ou pour organiser une visite, veuillez contacter : Jessica ANDRIEUX 07 81 72 37 94 Agence AMJ IMMO

Caractéristiques de ce bien

  • Surface 70 m²
  • carrez 70 m²
  • séjour 26 m²
  • 2 chambre(s)
  • 1 salle(s) de bain
  • construit en 2026
  • cuisine américaine
  • exposition Est
  • 1er étage
  • balcon

Diagnostics énergétiques

Consommation énergétique
A B C D E F G
Emission de gaz à effet de serre
A B C D E F G
DPE en cours

Informations financières

Prix de vente 208 802 € Les honoraires d'agence seront intégralement à la charge du vendeur

Informations de copropriété

Copropriété Oui
Nombre de lots 6

Calcul des mensualités

* Champs obligatoires