AMJ IMMO Agence
Télécharger la fiche

Appartement 1 pièce(s) 26 m²

Castelnau-le-Lez (34170)
120 000 € Référence 045109

A propos de ce bien

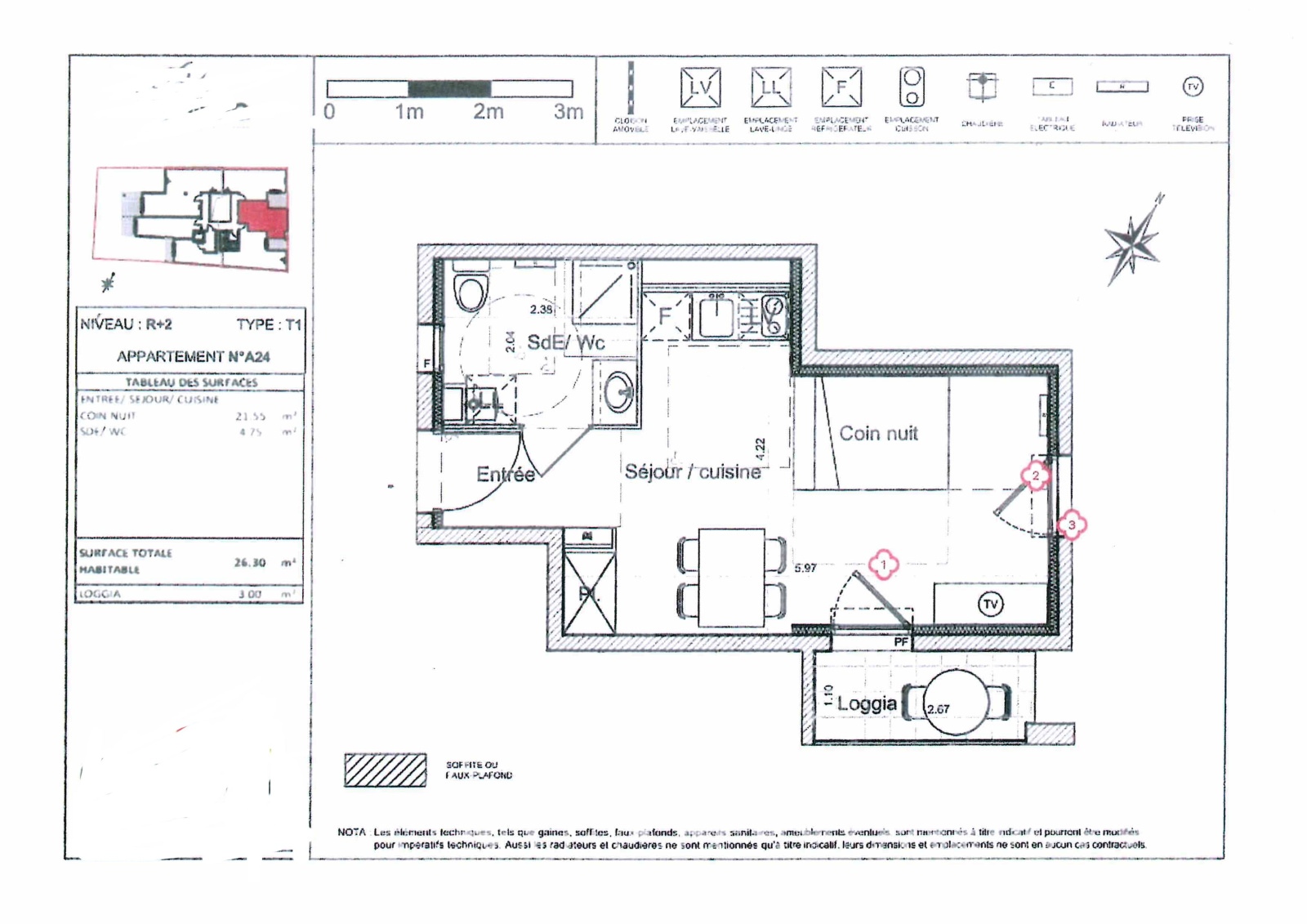
CASTELNAU LE LEZ, T1 de 26.30m² au deuxième étage d’une résidence récente et sécurisé de 2016 , appartement de type T1 de 26.30m² comprenant une cuisine aménagée ouverte sur la pièce à vivre de 21m² avec un coin nuit, d’une terrasse de 3m², d’une salle de douche avec WC. Chauffage au gaz individuel. A proximité de l’arrêt de tramway, ligne 2 ”Charles de Gaulle” ainsi que de toutes les commodités.

actuellement loué jusqu'en novembre 2026 loyer 523.06 € Charges comprises

Bien soumis au statut juridique de la copropriété.Charges annuelles de copropriété (Montant moyen annuel quote-part du budget prévisionnel vendeur)680€

Les informations sur les risques auxquels ce bien est exposé sont disponibles sur le site Géorisques : www. georisques. gouv. fr

Pour tout renseignement complémentaire ou organiser une visite, contactez :Martine ABAD 06 23 14 84 49 Agence AMJ IMMO

Caractéristiques de ce bien

  • Surface 26 m²
  • carrez 26 m²
  • séjour 21,55 m²
  • 1 salle(s) d'eau
  • construit en 2013
  • cuisine américaine
  • 2ème étage
  • balcon

Diagnostics énergétiques

Consommation énergétique
A B C D E F G
Emission de gaz à effet de serre
A B C D E F G
DPE en cours

Informations financières

Prix de vente honoraires TTC inclus 120 000 €
Prix de vente honoraires TTC exclus 115 000 €
Honoraires TTC à la charge acquéreur 4,35 %
Charges 58 €
Taxe foncière annuelle 840 €

Informations de copropriété

Copropriété Oui
Nombre de lots 31

Calcul des mensualités

* Champs obligatoires