AMJ IMMO Agence
Télécharger la fiche

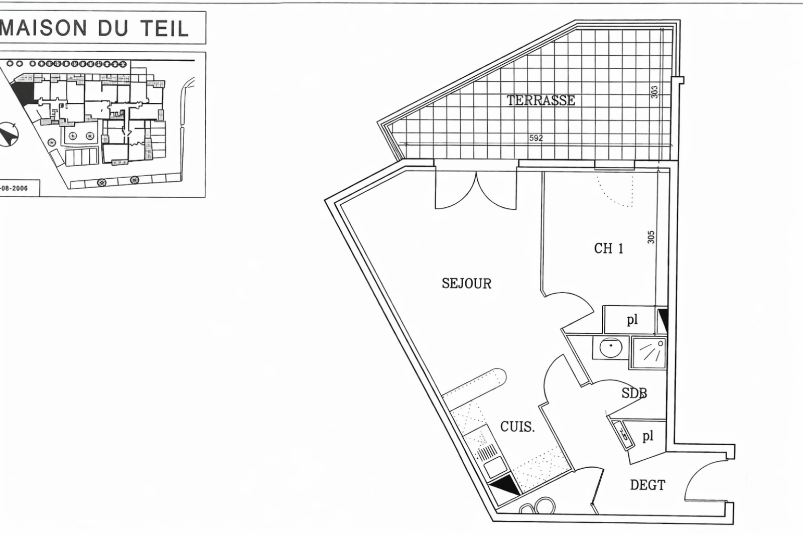
Appartement 2 pièce(s) 1 chambre(s) 44 m²

Nîmes (30000)
135 000 € Référence 45610

A propos de ce bien

NIMES-Dans une résidence MAISON DU TEIL située à proximité de la « Ville Active » et des accès autoroute . Appartement de type T2 de 44m² situé au 1er étage comprenant un séjour avec cuisine américaine donnant sur une belle terrasse de 14.10m2, une chambre de 9.90m² , une salle d'eau et un wc séparé.Ainsi qu'un emplacement de parking privatif. Arret de bus Maréchal juin, à 5 minutes de la polyclinique Grand Sud.

Bien soumis au statut juridique de la copropriété nombres de lot 163 Charges annuelles de copropriété (Montant moyen annuel quote-part du budget prévisionnel vendeur) :880 euros.

Les informations sur les risques auxquels ce bien est exposé sont disponibles sur le site Géorisques : www. georisques. gouv. fr

Pour tous renseignements complementaires ou visite veuillez contacter : jessica ANDRIEUX 07.81.72.37.94 - Agence AMJ IMMO

Caractéristiques de ce bien

  • Surface 44 m²
  • carrez 44 m²
  • séjour 22 m²
  • 1 chambre(s)
  • 1 salle(s) de bain
  • cuisine américaine
  • Chauffage individuel : radiateur (electrique)
  • exposition Nord-Ouest
  • 1er étage
  • terrasse

Diagnostics énergétiques

Consommation énergétique
A B C D E F G
Emission de gaz à effet de serre
A B C D E F G
DPE en cours

Informations financières

Prix de vente honoraires TTC inclus 135 000 €
Prix de vente honoraires TTC exclus 130 000 €
Honoraires TTC à la charge acquéreur 3,85 %
Charges 73 €
Taxe d'habitation 864 €

Informations de copropriété

Copropriété Oui
Nombre de lots 109

Calcul des mensualités

* Champs obligatoires