AMJ IMMO Agence
Télécharger la fiche

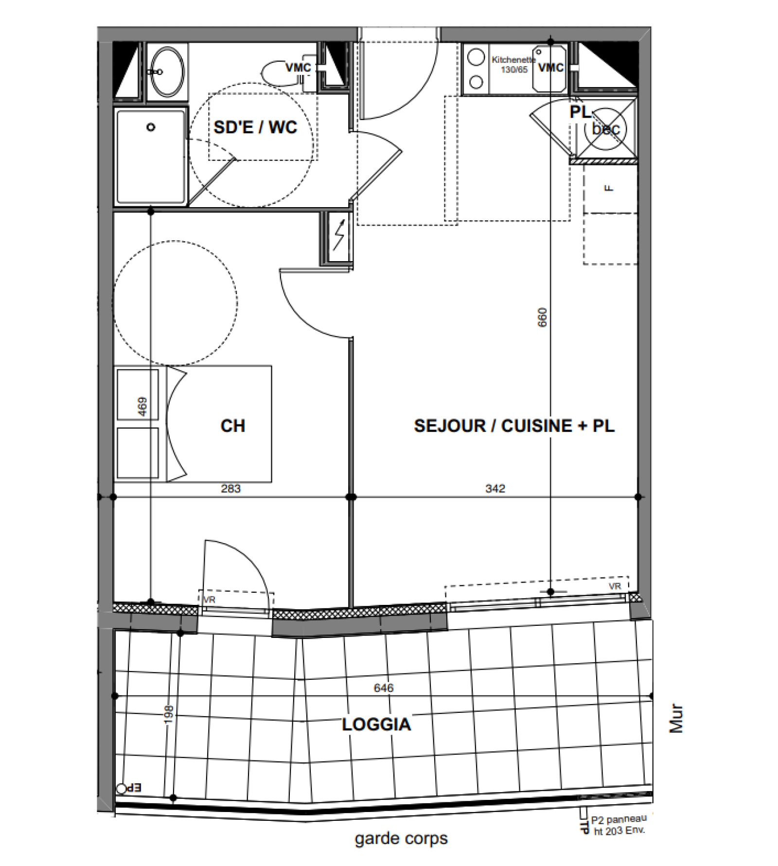
Appartement 2 pièce(s) 1 chambre(s) 40 m²

Nîmes (30000)
158 250 € Référence 14032

A propos de ce bien

NÎMES – Quartier Mont Duplan Situé à 8 minutes à pied de l’Écusson, cet appartement se trouve au sein d’une résidence contemporaine et sécurisée de 49 logements, conforme aux normes RT 2012.L’appartement, de type T2 et d’une superficie de 40,53 m², est situé au 1er étage avec ascenseur. Il se compose d’un séjour avec cuisine donnant accès à une belle terrasse de 12,83 m² exposée EST, d’une chambre, d’une salle de bains et d’un WC séparé. Un emplacement de parking privatif en sous-sol.

Le bien est soumis au statut juridique de la copropriété. Nombre de lots : 49.

Pour tous renseignements complémentaires ou pour organiser une visite, veuillez contacter : Jessica ANDRIEUX – 07 81 72 37 94 Agence AMJ IMMO

Caractéristiques de ce bien

  • Surface 40 m²
  • carrez 40 m²
  • 1 chambre(s)
  • 1 salle(s) de bain
  • construit en 2026
  • cuisine américaine
  • exposition Est
  • 1er étage
  • balcon

Diagnostics énergétiques

Consommation énergétique
A B C D E F G
Emission de gaz à effet de serre
A B C D E F G
DPE en cours

Informations financières

Prix de vente 158 250 € Les honoraires d'agence seront intégralement à la charge du vendeur

Informations de copropriété

Copropriété Oui
Nombre de lots 6

Calcul des mensualités

* Champs obligatoires