

Appartement 2 pièce(s) 1 chambre(s) 34.1 m²
Nîmes (30000)A propos de ce bien
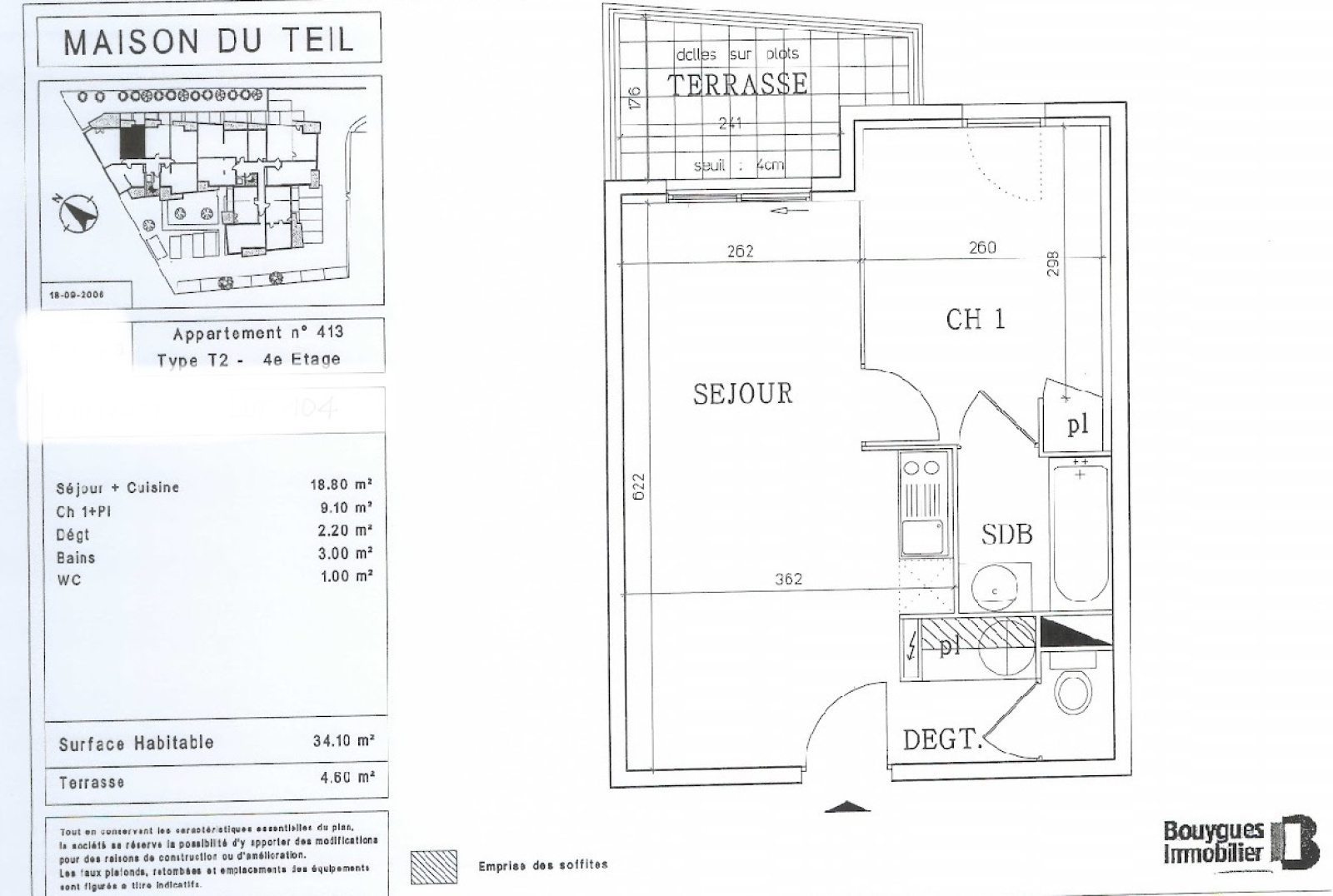
NIMES-Dans une résidence MAISON DU TEIL située à proximité de la « Ville Active » et des accès autoroute . Appartement de type T2 de 34,10 situé au 4 eme étage comprenant un séjour avec cuisine américaine donnant sur une belle terrasse de 4m2, une chambre , une salle de bains et un wc séparé.Ainsi qu'un emplacement de parking privatif.
Actuellement loué 457€ +58€ soit 515€ charges comprises - bien soumis à une convention PLS jusqu'en juin 2028
Pour tous renseignements complementaires ou visite veuillez contacter : Martine ABAD 0623148449
Caractéristiques de ce bien
- Surface 34,10 m²
- carrez 34,10 m²
- 1 chambre(s)
- 1 salle(s) de bain
- cuisine américaine
- Chauffage individuel : radiateur (electrique)
- 4ème étage
- terrasse