

Appartement 3 pièce(s) 2 chambre(s) 60 m²
Nîmes (30000)A propos de ce bien
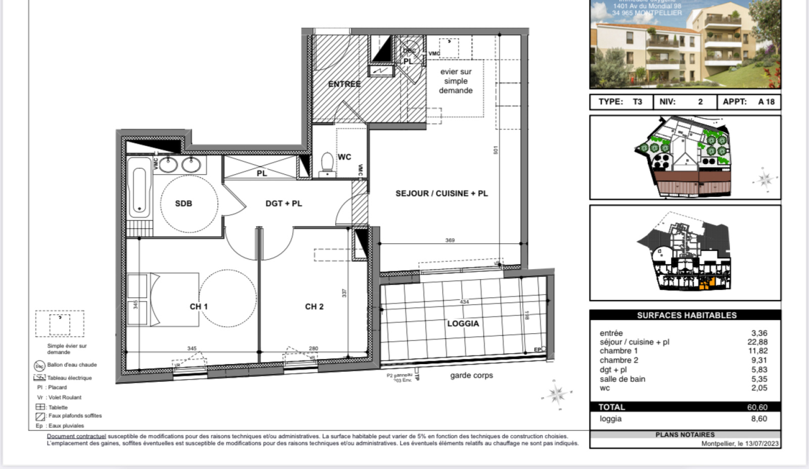
NIMES- QUARTIER MONT DUPLAN A 8 minutes à pied de l'écusson , dans une résidence securisee Appartement de type T3 de 60m2 au 2eme étage comprenant un séjour avec une cuisine donnant sur une belle terrasse de 8,60m2 exposé est sans vis à vis , deux chambres ,une salle de bains et un wc. Ainsi qu’un emplacement de parking privatif en sous-sol.
TVA 5.5 % sous conditions de resources et résidence principale
Pour tous renseignements complementaires ou visite veuillez contacter: Jessica ANDRIEUX 07.81.72.37.94.- Agence AMJ IMMO
Caractéristiques de ce bien
- Surface 60 m²
- carrez 60 m²
- séjour 22 m²
- 2 chambre(s)
- 1 salle(s) de bain
- cuisine américaine
- exposition Est
- 2ème étage
- balcon