AMJ IMMO Agence
Télécharger la fiche

Appartement 3 pièce(s) 2 chambre(s) 68 m²

Montpellier (34000)
240 000 € Référence 7510

A propos de ce bien

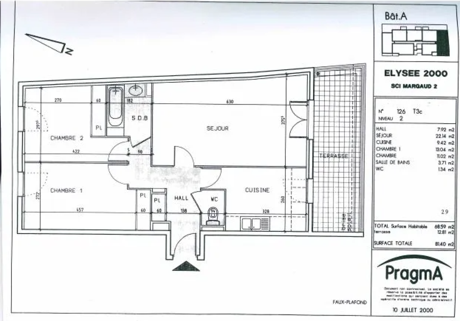
MONTPELLIER - QUARTIER ANTIGONE- Dans une résidence sécurisée de 2001 appartement de type T3 de 68m² situé au 2 ème avec ascenseur comprenant un séjour de 22 m² donnant sur une terrasse de 12.81m², cuisine séparée de 9.42m² , deux chambres de 13m² et 11m² et une salle de bains et un wc séparé . Ainsi qu'un garage en sous-sol. Proche de toutes les commodités .

Bien soumis au statut juridique de la copropriété.nombre d'appartements 92 Charges annuelles de copropriété (Montant moyen annuel quote-part du budget prévisionnel vendeur) 2600€

Les informations sur les risques auxquels ce bien est exposé sont disponibles sur le site Géorisques : www. georisques. gouv. fr

Pour tous renseignements complementaires ou visite veuillez contacter : Martine ABAD 0623148449- Agence AMJ IMMO

Caractéristiques de ce bien

  • Surface 68 m²
  • carrez 68 m²
  • 2 chambre(s)
  • 1 salle(s) de bain
  • construit en 2002
  • cuisine américaine
  • Chauffage collectif : radiateur (gaz)
  • 1 garage(s)
  • exposition Sud
  • 2ème étage
  • ascenseur
  • terrasse

Diagnostics énergétiques

Consommation énergétique
A B C D E F G
Emission de gaz à effet de serre
A B C D E F G
DPE ANCIENNE VERSION

Informations financières

Prix de vente honoraires TTC inclus 240 000 €
Prix de vente honoraires TTC exclus 232 000 €
Honoraires TTC à la charge acquéreur 3,45 %
Charges 200 €
Taxe foncière annuelle 1 449 €

Informations de copropriété

Copropriété Oui
Nombre de lots 24
Quote part annuelle des charges 0 €

Calcul des mensualités

* Champs obligatoires