AMJ IMMO Agence
Télécharger la fiche

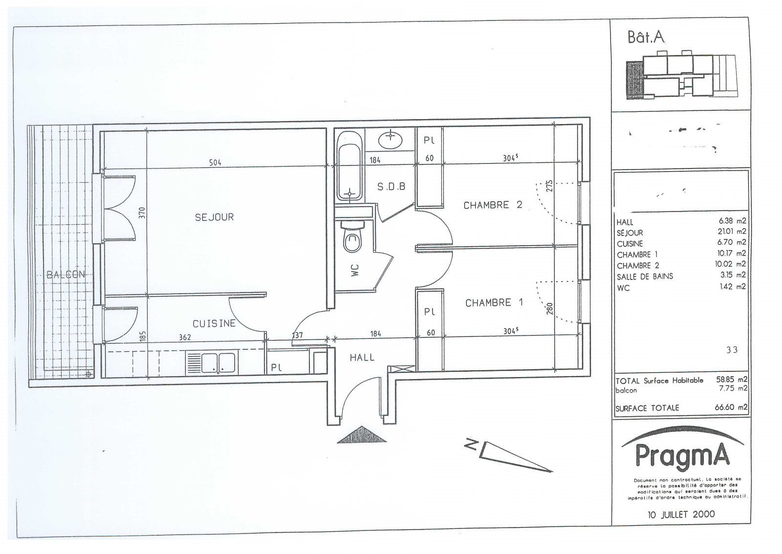
Appartement 3 pièce(s) 2 chambre(s) 58 m²

Montpellier (34000)
218 000 € Référence 45150

A propos de ce bien

MONTPELLIER - QUARTIER ANTIGONE- Dans une résidence récente et sécurisée de 2001 appartement de type T3 de 58m² situé au 4 ème avec ascenseur comprenant un séjour avec cuisine donnant sur une terrasse de 7.75m² exposée sud, deux chambres et une salle de bains et unwc séparé . Libre de tout locataire à compter de juin 2026

Ainsi qu'un garage en sous-sol. Proche de toutes les commodités .

Bien soumis au statut juridique de la copropriété.nombre d'appartements 92 Charges annuelles de copropriété (Montant moyen annuel quote-part du budget prévisionnel vendeur) 2621€

Les informations sur les risques auxquels ce bien est exposé sont disponibles sur le site Géorisques : www. georisques. gouv. fr

Pour tous renseignements complementaires ou visite veuillez contacter : Martine ABAD 0623148449- Agence AMJ IMMO

Caractéristiques de ce bien

  • Surface 58 m²
  • carrez 58 m²
  • 2 chambre(s)
  • 1 salle(s) de bain
  • construit en 2002
  • cuisine américaine
  • Chauffage collectif : radiateur (gaz)
  • 1 garage(s)
  • exposition Sud
  • 4ème étage
  • ascenseur
  • terrasse

Diagnostics énergétiques

Consommation énergétique
A B C D E F G
Emission de gaz à effet de serre
A B C D E F G
DPE ANCIENNE VERSION

Informations financières

Prix de vente honoraires TTC inclus 218 000 €
Prix de vente honoraires TTC exclus 210 000 €
Honoraires TTC à la charge acquéreur 3,81 %
Charges 218 €
Taxe foncière annuelle 1 449 €

Calcul des mensualités

* Champs obligatoires