 
         
                Maison 4 pièce(s) 3 chambre(s) 82 m²
Frontignan (34110)A propos de ce bien
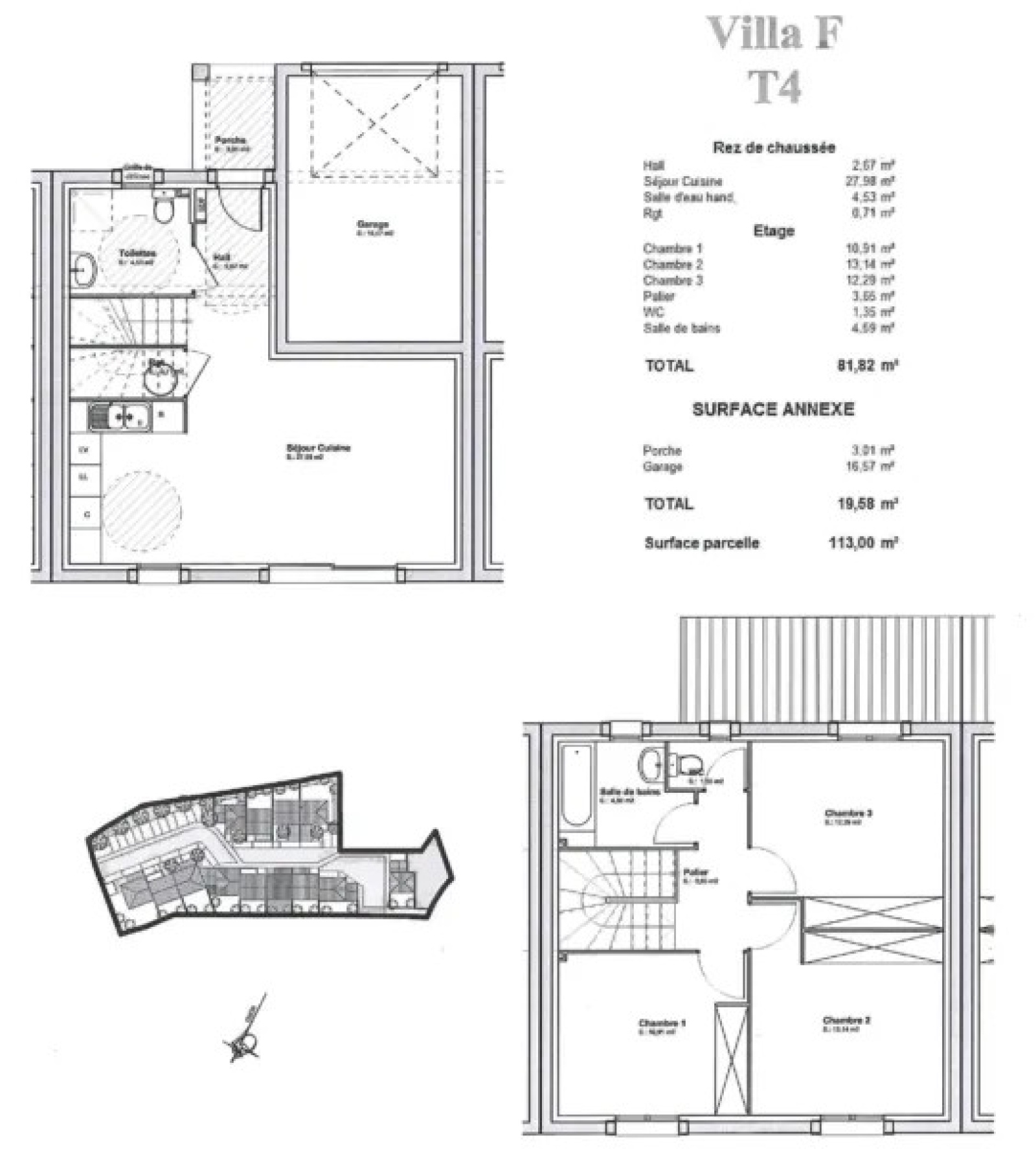
FRONTIGNAN- Dans lotissement récent, maison T4 en r+1 de 81.82m² sur une parcelle de 113m² comprenant un séjour avec cuisine de 27m² donnant sur un jardin d'environ 40m² ; une salle d'eau avec un wc. A l'étage trois chambres , salle de bains et wc séparé. Ainsi qu'un garage de 16.57m². plancher chauffant avec pompe à chaleur.
Bien soumis au statut juridique de la copropriété.Charges annuelles de copropriété (Montant moyen annuel quote-part du budget prévisionnel vendeur) :360 €
Les informations sur les risques auxquels ce bien est exposé sont disponibles sur le site Géorisques : www. georisques. gouv. fr
Pour tous renseignements complementaires ou visite veuillez contacter : Martine ABAD 06.23.14.84.49- Agence AMJ IMMO
Caractéristiques de ce bien
- Surface 82 m²
- carrez 82 m²
- terrain 113 m²
- séjour 26 m²
- 3 chambre(s)
- 1 salle(s) de bain
- 1 salle(s) d'eau
- Chauffage individuel : au sol (autre)
- 1 garage(s)
- 1 niveau(x)
 
             
                                 
                                 
                                 
                                 
                                 
                                 
                            