AMJ IMMO Agence
Télécharger la fiche

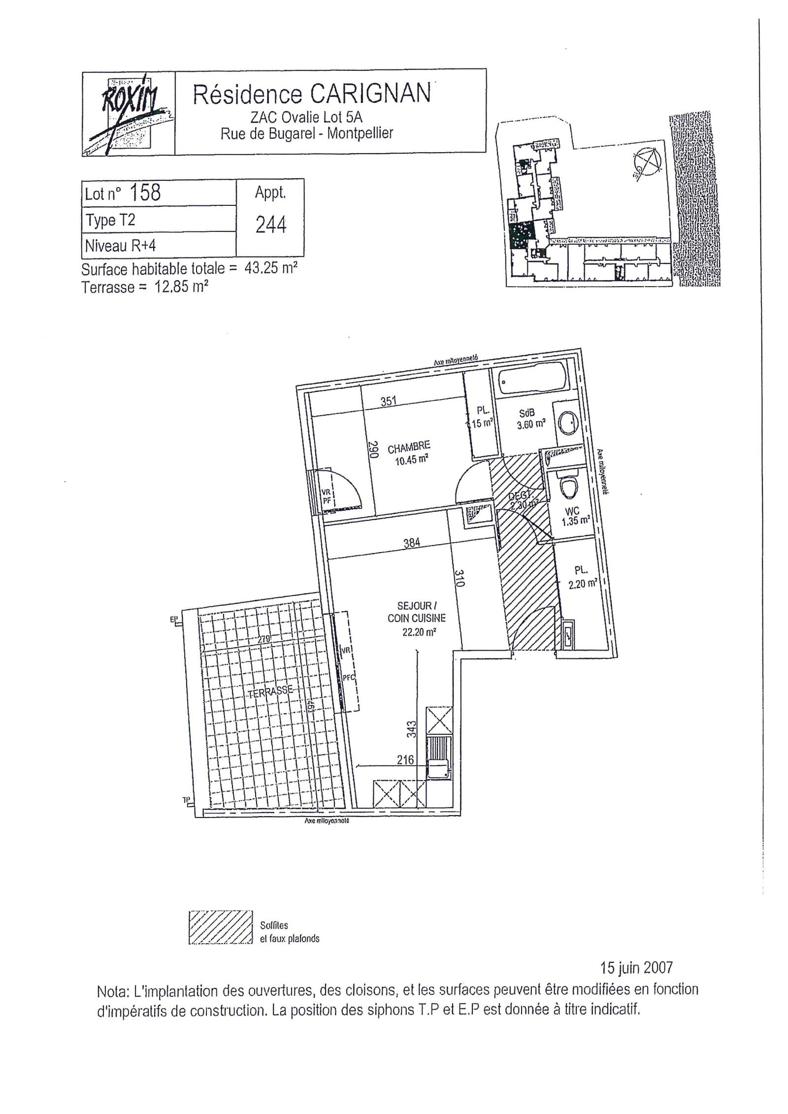
Appartement 2 pièce(s) 1 chambre(s) 43 m²

Montpellier (34070)
167 000 € Référence 10022

A propos de ce bien

MONTPELLIER-QUARTIER OVALIE- Dans une résidence sécurisée de 2009 ,T2 de 43,25 m² situé au 4eme étage d’une résidence sécurisée avec ascenseur, proche des commodités et du tram ligne 5 (arrêt Ovalie).Il se compose d’une entrée, d’un séjour lumineux avec cuisine ouverte aménagée 22m2 donnant sur une belle terrasse de 12,85m2 , d’une chambre avec placard, d’une salle d’eau et d’un WC séparé. Libre de tout locataire à compter de décembre 2026.

Bien soumis au statut juridique de la copropriété. Nb de lot :59. Charges annuelles de copropriété (Montant moyen annuel quote-part du budget prévisionnel vendeur) :1378 €Pour tous renseignements complementaires ou visite veuillez contacter : Jessica ANDRIEUX 07.81.72.37.94- Agence AMJ IMMO

Caractéristiques de ce bien

  • Surface 43 m²
  • carrez 43 m²
  • séjour 23,40 m²
  • 1 chambre(s)
  • 1 salle(s) de bain
  • construit en 2009
  • cuisine américaine
  • Chauffage individuel : convecteur (electrique)
  • 1 garage(s)
  • exposition Nord-Ouest
  • 4ème étage
  • 6 étage(s)
  • ascenseur
  • terrasse

Diagnostics énergétiques

Consommation énergétique
A B C D E F G
Emission de gaz à effet de serre
A B C D E F G
DPE en cours

Informations financières

Prix de vente honoraires TTC inclus 167 000 €
Prix de vente honoraires TTC exclus 160 000 €
Honoraires TTC à la charge acquéreur 4,38 %
Charges 96 €
Taxe foncière annuelle 1 199 €

Informations de copropriété

Copropriété Oui
Nombre de lots 244

Calcul des mensualités

* Champs obligatoires