AMJ IMMO Agence
Télécharger la fiche

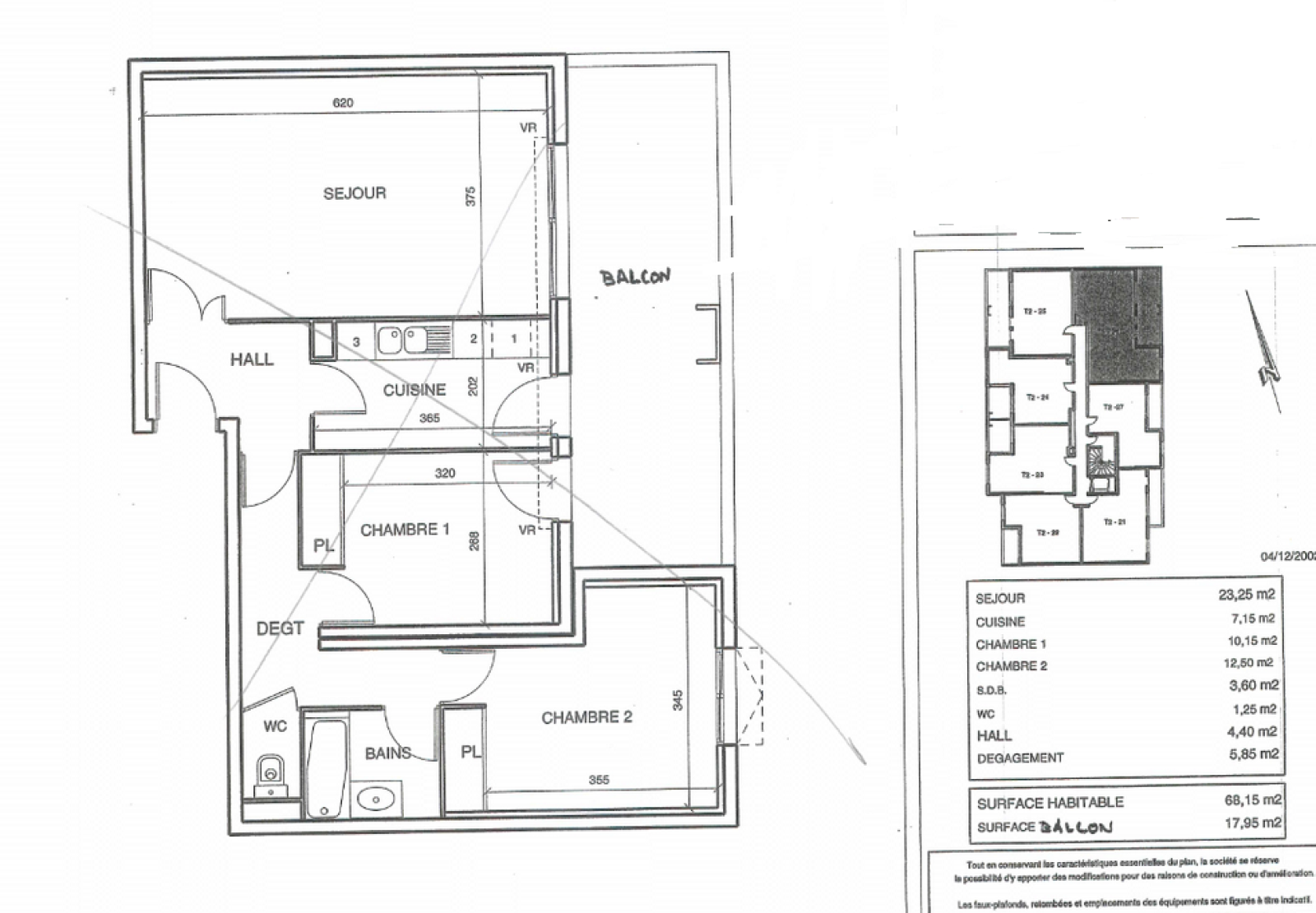
Appartement 3 pièce(s) 2 chambre(s) 68 m²

Montpellier (34000)
335 000 € Référence 0778

A propos de ce bien

MONTPELLIER- BOUTONNET - Découvrez cet appartement de trois pièces de 68 m², situé au 2ème étage avec ascenseur comprenant un séjour de 23m² lumineux ouvrant sur une agréable terrasse de 18 m², d’une cuisine séparée de 7m² , de deux chambres de 10.15m² et 12.5m² , ainsi que d’une salle de bains de 3.60m² . Ainsi qu'un garage.

Les informations sur les risques auxquels ce bien est exposé sont disponibles sur le site Géorisques : www. georisques. gouv. fr

Bien soumis au statut juridique de la copropriété. nombre de lot Charges annuelles de copropriété (Montant moyen annuel quote-part du budget prévisionnel vendeur) : 1580€

Pour tous renseignements complementaires ou visite veuillez contacter : Jessica ANDRIEUX 07.81.72.37.94- Agence AMJ IMMO

Caractéristiques de ce bien

  • Surface 68 m²
  • carrez 68 m²
  • séjour 23 m²
  • 2 chambre(s)
  • 1 salle(s) de bain
  • construit en 2006
  • cuisine séparée
  • Chauffage individuel : radiateur (electrique)
  • 1 garage(s)
  • 2ème étage
  • ascenseur
  • terrasse

Diagnostics énergétiques

Consommation énergétique
A B C D E F G
Emission de gaz à effet de serre
A B C D E F G
DPE en cours

Informations financières

Prix de vente honoraires TTC inclus 335 000 €
Prix de vente honoraires TTC exclus 320 000 €
Honoraires TTC à la charge acquéreur 4,69 %
Charges 130 €
Taxe foncière annuelle 1 740 €

Informations de copropriété

Copropriété Oui
Nombre de lots 305

Calcul des mensualités

* Champs obligatoires