AMJ IMMO Agence
Télécharger la fiche

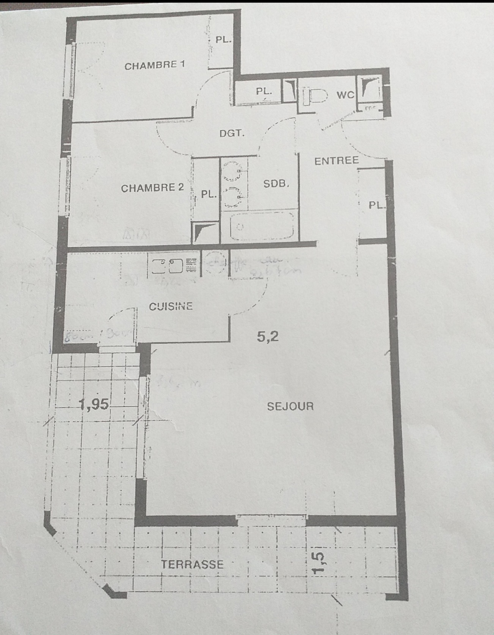
Appartement 3 pièce(s) 2 chambre(s) 68 m²

Montpellier (34090)
265 000 € Référence 567

A propos de ce bien

MONTPELLIER - QUARTIER HOPITAUX FACTULTES - Dans une résidence bien entretenue avec parc boisé, appartement 3 pièces de 68 m², situé au 3eme étage sur 4 avec ascenseur, comprenant un séjour ouvrant sur une terrasse de 16 m² exposée sud-est, sans vis-à-vis, une cuisine aménagée et équipée avec accés à la terrasse, deux chambres avec placards, une salle de bains et WC séparés.
Ainsi qu'un garage fermé et une emplacement de parking . Proximité Hopital lapeyronie , Tram Domaine d'o à 10 minutes à pieds , lycée privé Turgot , C.I.N.E.S , commerces .
A visiter sans plus tarder .

Bien soumis au statut juridique de la copropriété. nombre de lot 137 Charges annuelles de copropriété (Montant moyen annuel quote-part du budget prévisionnel vendeur) :

Pour tous renseignements complementaires ou visite veuillez contacter : Martine ABAD 06.23.14.84.49- Agence AMJ IMMO

Caractéristiques de ce bien

  • Surface 68 m²
  • 2 chambre(s)
  • construit en 2001
  • 1 garage(s)
  • exposition Sud
  • 3ème étage
  • 4 étage(s)
  • terrasse

Diagnostics énergétiques

Consommation énergétique
A B C D E F G
Emission de gaz à effet de serre
A B C D E F G
DPE en cours

Informations financières

Prix de vente honoraires TTC inclus 265 000 €
Prix de vente honoraires TTC exclus 255 000 €
Honoraires TTC à la charge acquéreur 3,92 %

Calcul des mensualités

* Champs obligatoires