AMJ IMMO Agence
Télécharger la fiche

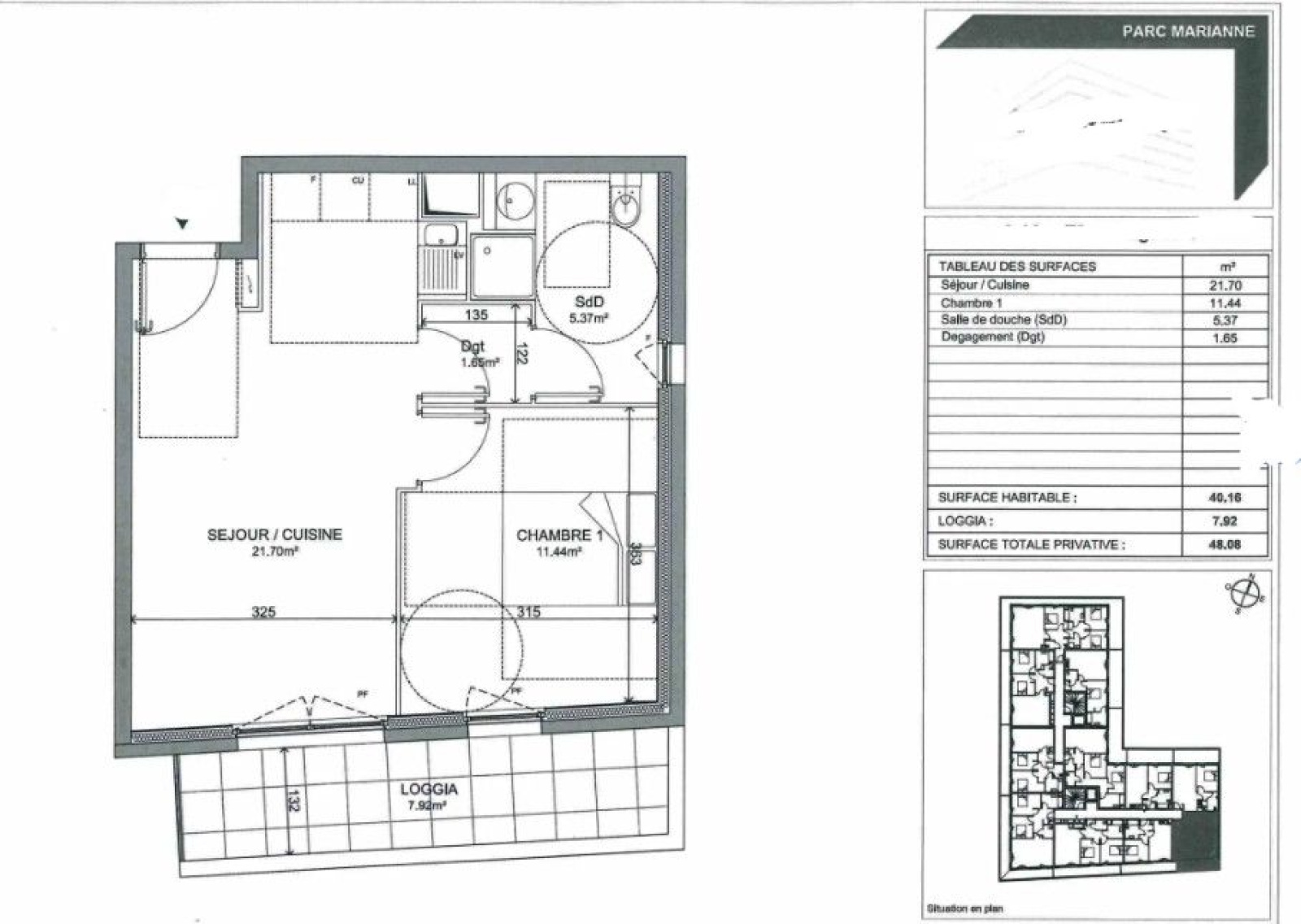
Appartement 2 pièce(s) 1 chambre(s) 40 m²

Montpellier (34000)
178 000 € Référence 0457

A propos de ce bien

MONTPELLIER- PORT MARIANNE- Dans une résidence sécurisée de 2016 composée de 63 logements , Appartement de type T2 de 40.16m² situé au 1er étage comprenant une entrée donnant sur le séjour/cuisine donnant sur une terrasse de 7.92m² exposée Sud , une chambre , une salle d’eau avec WC. Ainsi qu'un parking en sous-sol . Libre de tout locataire à compter de juin 2026.

Proche de toutes les commodités, à proximité du parc GEORGES CHAPAK et du tram arrêt Pablo Picasso .

Bien soumis au statut juridique de la copropriéte (Montant moyen annuel quote-part du budget prévisionnel vendeur) :1100€

Pour tous renseignements complementaires ou visite veuillez contacter : Martine ABAD 06.23.14.84.49- Agence AMJ IMMO

Caractéristiques de ce bien

  • Surface 40 m²
  • carrez 40,16 m²
  • 1 chambre(s)
  • 1 salle(s) d'eau
  • construit en 2016
  • cuisine américaine
  • Chauffage collectif : radiateur (gaz)
  • 1er étage
  • 7 étage(s)
  • terrasse

Diagnostics énergétiques

Consommation énergétique
A B C D E F G
Emission de gaz à effet de serre
A B C D E F G
DPE en cours

Informations financières

Prix de vente honoraires TTC inclus 178 000 €
Prix de vente honoraires TTC exclus 170 000 €
Honoraires TTC à la charge acquéreur 4,71 %
Charges 102 €
Taxe foncière annuelle 1 441 €

Calcul des mensualités

* Champs obligatoires