AMJ IMMO Agence
Télécharger la fiche

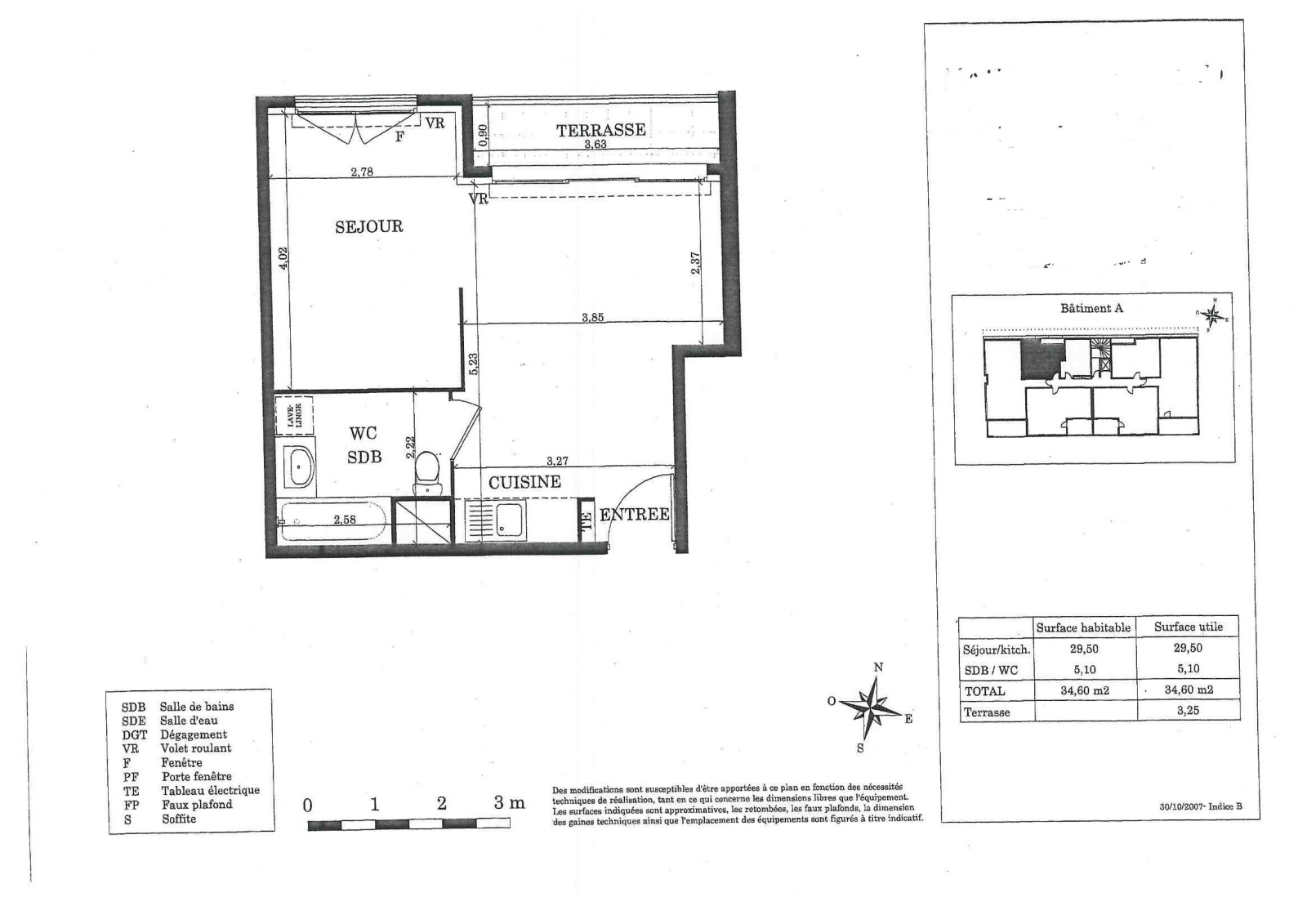
Appartement 2 pièce(s) 1 chambre(s) 34.6 m²

Montpellier (34000)
145 000 € Référence 204850

A propos de ce bien

MONTPELLIER- QUARTIER ANTIGONE , Dans une résidence sécurisée de 2009 , appartement de type T2 compact de 34.60m² situé au 1er étage comprenant un séjour avec kichenette donnant sur une terrasse de 3.5m² , une chambre , une salle de bains .

Bien soumis au statut juridique de la copropriété. Charges annuelles de copropriété (Montant moyen annuel quote-part du budget prévisionnel vendeur)

Les informations sur les risques auxquels ce bien est exposé sont disponibles sur le site Géorisques : www. georisques. gouv. fr

Pour tous renseignements complementaires ou visite veuillez contacter : Martine ABAD 06.23.14.84.49- Agence AMJ IMMO

Caractéristiques de ce bien

  • Surface 34,60 m²
  • carrez 34,60 m²
  • 1 chambre(s)
  • 1 salle(s) d'eau
  • construit en 2009
  • cuisine américaine
  • Chauffage individuel : radiateur (electrique)
  • 1er étage
  • ascenseur
  • terrasse

Diagnostics énergétiques

Consommation énergétique
A B C D E F G
Emission de gaz à effet de serre
A B C D E F G
DPE en cours

Informations financières

Prix de vente honoraires TTC inclus 145 000 €
Prix de vente honoraires TTC exclus 138 000 €
Honoraires TTC à la charge acquéreur 5,07 %

Informations de copropriété

Copropriété Oui
Nombre de lots 52

Calcul des mensualités

* Champs obligatoires