

Appartement 2 pièce(s) 1 chambre(s) 45.2 m²
Montpellier (34000)A propos de ce bien
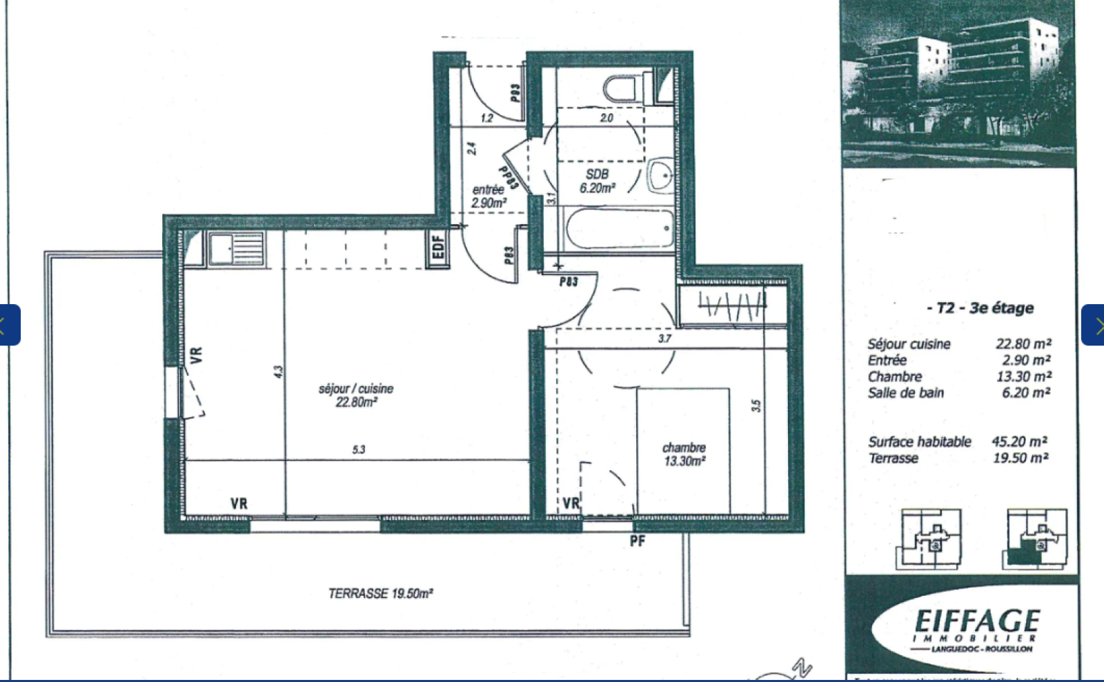
MONTPELLIER- QUARTIER LES GRISETTES , Dans une residence securisee de 2011 , appartement de type t2 de 45m2 situe au 3eme etage avec ascenseur comprenant un sejour avec cuisine americaine donnant sur une terrasse de 19.5m2 , une chambre et une salle d’eau. Ainsi qu’un garage. A proximitié de l'arret de tramway ligne 2 "Les Sabines" et de l'autoroute A9 - A709 . actuellement loué 650€+100€ de charges soit 750€ Jusqu'en juin 2027
Bien soumis au statut juridique de la copropriété nombre de lots (Charges annuelles de copropriété (Montant moyen annuel quote-part du budget prévisionnel vendeur) :1645 euros;
Pour tous renseignements complementaires ou visite veuillez contacter :Martine ABAD 06.23.14.84.49 Agence AMJ IMMO
Caractéristiques de ce bien
- Surface 45,20 m²
- carrez 45,20 m²
- 1 chambre(s)
- 1 salle(s) de bain
- construit en 2011
- cuisine américaine (équipée)
- Chauffage collectif : chaudière (gaz)
- 1 garage(s)
- 3ème étage
- ascenseur
- terrasse