AMJ IMMO Agence
Télécharger la fiche

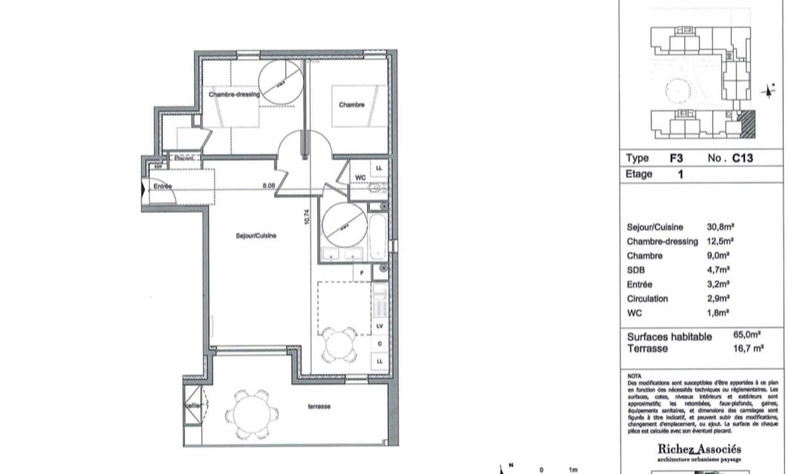
Appartement 3 pièce(s) 2 chambre(s) 65 m²

Montpellier (34000)
240 000 € Référence 1218

A propos de ce bien

MONTPELLIER- QUARTIER LES GRISETTES , Dans une résidence sécurisée, appartement de trois pièces de 65 m², situé au 1er étage avec ascenseur. Il se compose d’un séjour avec cuisine américaine equipée de 30 m², ouvrant sur une terrasse de 16,7 m² exposée plein Sud, de deux chambres dont une de 12,5 m² avec dressing et une de 9 m², d’une salle de bains et de WC séparés. Un parking privatif .

Libre de tout locataire à compter de mai 2026. Proximité de l’arrêt de tramway ligne 2 “Les Sabines” ainsi que des axes autoroutiers A9 et A709.

Bien soumis au statut juridique de la copropriéte 64 lots (Montant moyen annuel quote-part du budget prévisionnel vendeur) : 1560€

Pour tous renseignements complementaires ou visite veuillez contacter :Jessica ANDRIEUX 07.81.72.37.94 - Agence AMJ IMMO

Caractéristiques de ce bien

  • Surface 65 m²
  • carrez 65 m²
  • séjour 30 m²
  • 2 chambre(s)
  • 1 salle(s) de bain
  • construit en 2015
  • cuisine américaine
  • Chauffage collectif : radiateur (gaz)
  • exposition Sud
  • 1er étage
  • ascenseur
  • terrasse

Diagnostics énergétiques

Consommation énergétique
A B C D E F G
Emission de gaz à effet de serre
A B C D E F G
DPE en cours

Informations financières

Prix de vente honoraires TTC inclus 240 000 €
Prix de vente honoraires TTC exclus 230 000 €
Honoraires TTC à la charge acquéreur 4,35 %
Charges 130 €
Taxe foncière annuelle 1 499 €

Informations de copropriété

Copropriété Oui
Nombre de lots 82

Calcul des mensualités

* Champs obligatoires