

Appartement 2 pièce(s) 1 chambre(s) 42 m²
Mauguio (34130)A propos de ce bien
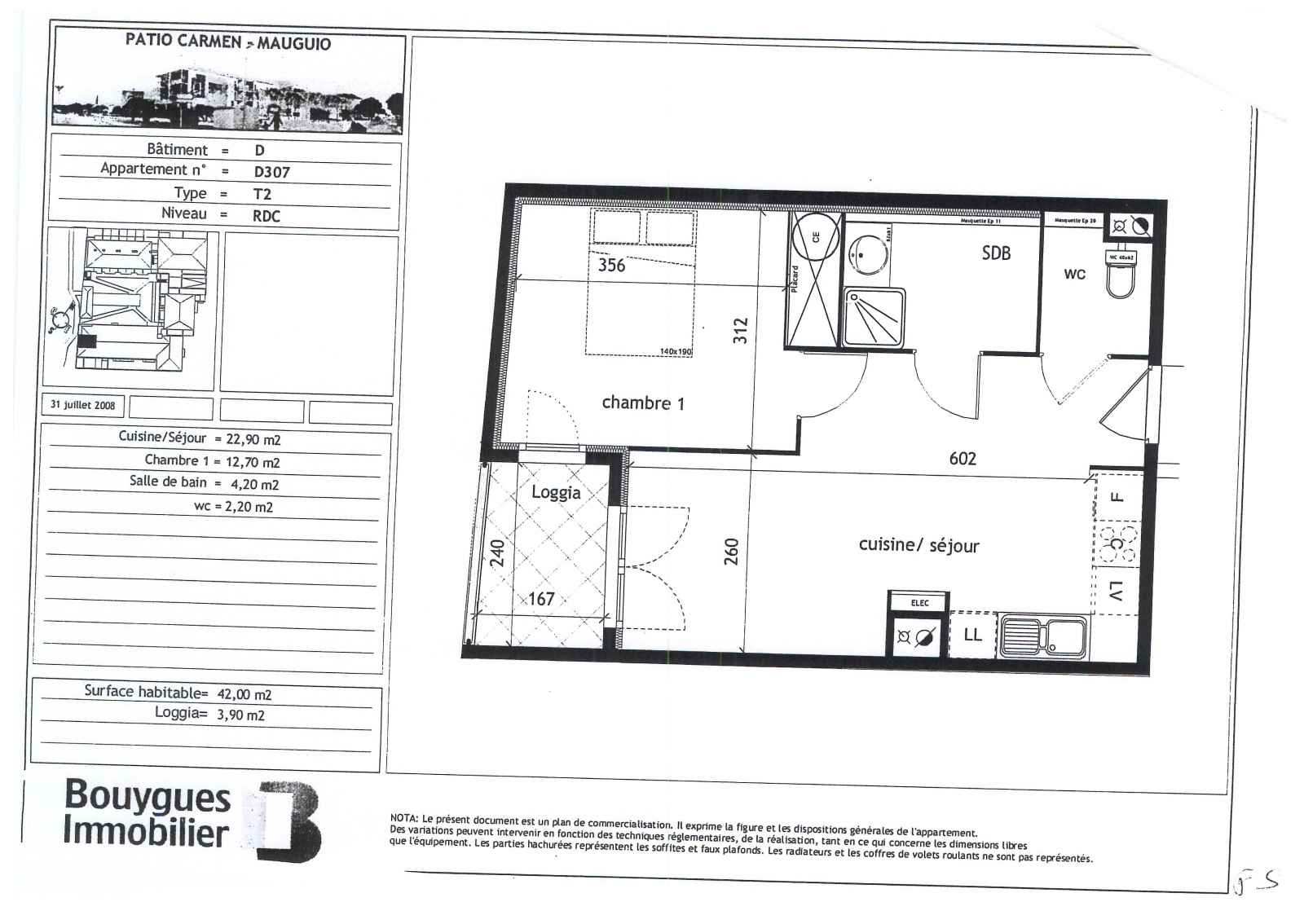
MAUGUIO- Dans une résidence récente , appartement de type T2 de 42m² situé au rez-de-chaussée comprenant un séjour avec cuisine de 22m2 avec une loggia de 3.90m² exposée sud-ouest, une chambre de 12.70m2 , une salle d’eau avec WC, et d’une place de parking en sous-sol
Bien soumis au statut juridique de la copropriété. Charges annuelles de copropriété (Montant moyen annuel quote-part du budget prévisionnel vendeur) :600€
Les informations sur les risques auxquels ce bien est exposé sont disponibles sur le site Géorisques : www. georisques. gouv. fr
Pour tous renseignements complementaires ou visite veuillez contacter : Martine ABAD 06.23.14.84.49- Agence AMJ IMMO
Caractéristiques de ce bien
- Surface 42 m²
- carrez 42 m²
- séjour 20 m²
- 1 chambre(s)
- 1 salle(s) d'eau
- construit en 2009
- cuisine américaine
- terrasse
Diagnostics énergétiques
Montant estimé des dépenses annuelles d'énergie pour un usage standard est compris entre 330 € et 550 € . Prix moyens des énergies indexés sur les années 2021, 2022 et 2023 (abonnements compris).
Diagnostics énergétiques
Montant estimé des dépenses annuelles d'énergie pour un usage standard est compris entre 330 € et 550 € . Prix moyens des énergies indexés sur les années 2021, 2022 et 2023 (abonnements compris).