AMJ IMMO Agence
Télécharger la fiche

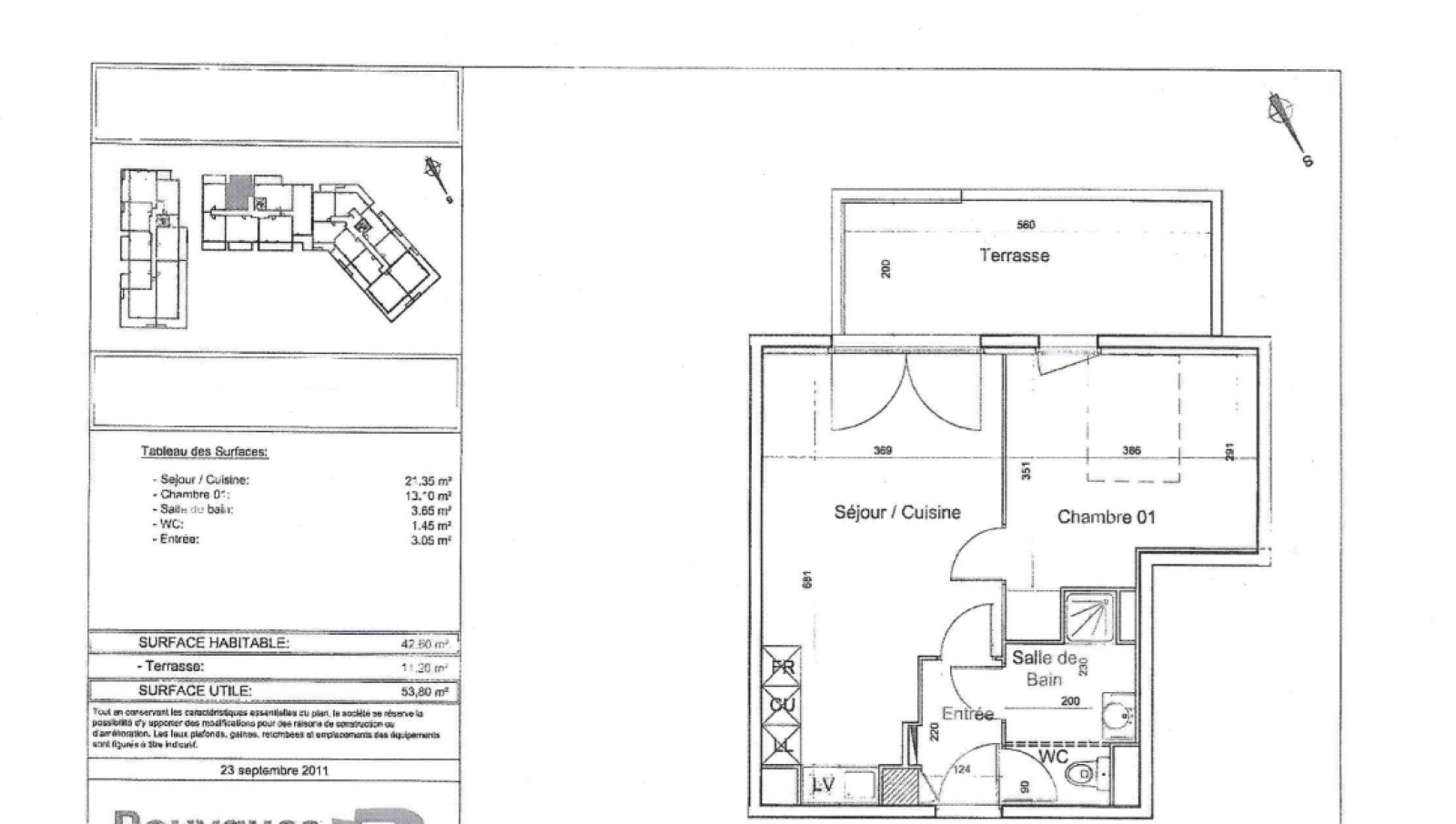
Appartement 2 pièce(s) 1 chambre(s) 43 m²

Juvignac (34990)
157 000 € Référence 01257

A propos de ce bien

JUVIGNAC - ZAC DES CONSTELLATIONS - Au sein d’une résidence récente et sécurisée, découvrez cet appartement T2 de 42,90 m², situé au 3ème étage avec ascenseur comprenant un séjour avec cuisine donnant sur un terrasse de 11.80m2 , une chambre et une salle de bains . Ainsi qu'un emplacement de parking privatif .

Idéalement situé à proximité immédiate des commodités et à quelques pas du tramway,

Les informations sur les risques auxquels ce bien est exposé sont disponibles sur le site Géorisques : www. georisques. gouv. fr

Bien soumis au statut juridique de la copropriété. nombre de lot 115 Charges annuelles de copropriété (Montant moyen annuel quote-part du budget prévisionnel vendeur) :1240€

Pour tout renseignement complémentaire ou pour organiser une visite, veuillez contacter Jessica ANDRIEUX 07.81.72.37.94 - Agence AMJ IMMO

Caractéristiques de ce bien

  • Surface 43 m²
  • carrez 43 m²
  • 1 chambre(s)
  • 1 salle(s) de bain
  • construit en 2013
  • cuisine américaine
  • Chauffage collectif : convecteur (gaz)
  • 3ème étage
  • 4 étage(s)
  • terrasse

Diagnostics énergétiques

Consommation énergétique
A B C D E F G
Emission de gaz à effet de serre
A B C D E F G

Montant estimé des dépenses annuelles d'énergie pour un usage standard est compris entre 305 € et 413 € . Prix moyens des énergies indexés sur les années 2021, 2022 et 2023 (abonnements compris).

Informations financières

Prix de vente honoraires TTC inclus 157 000 €
Prix de vente honoraires TTC exclus 150 000 €
Honoraires TTC à la charge acquéreur 4,67 %
Charges 120 €
Taxe foncière annuelle 954 €

Calcul des mensualités

* Champs obligatoires